Page suivante
Page précédente
Lanslevillard (73480)

Appartement 2 pièce(s) 1 chambre(s) 36 m²

1
Ascenseur
1
282 983 €
Réf 95

Dans une petite copropriété de 10 lots complètement individualisés. Emplacement idéal dans le village proche de tous les commerces et à 300m à pied du départ des pistes de ski.

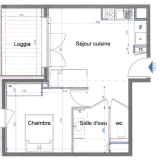
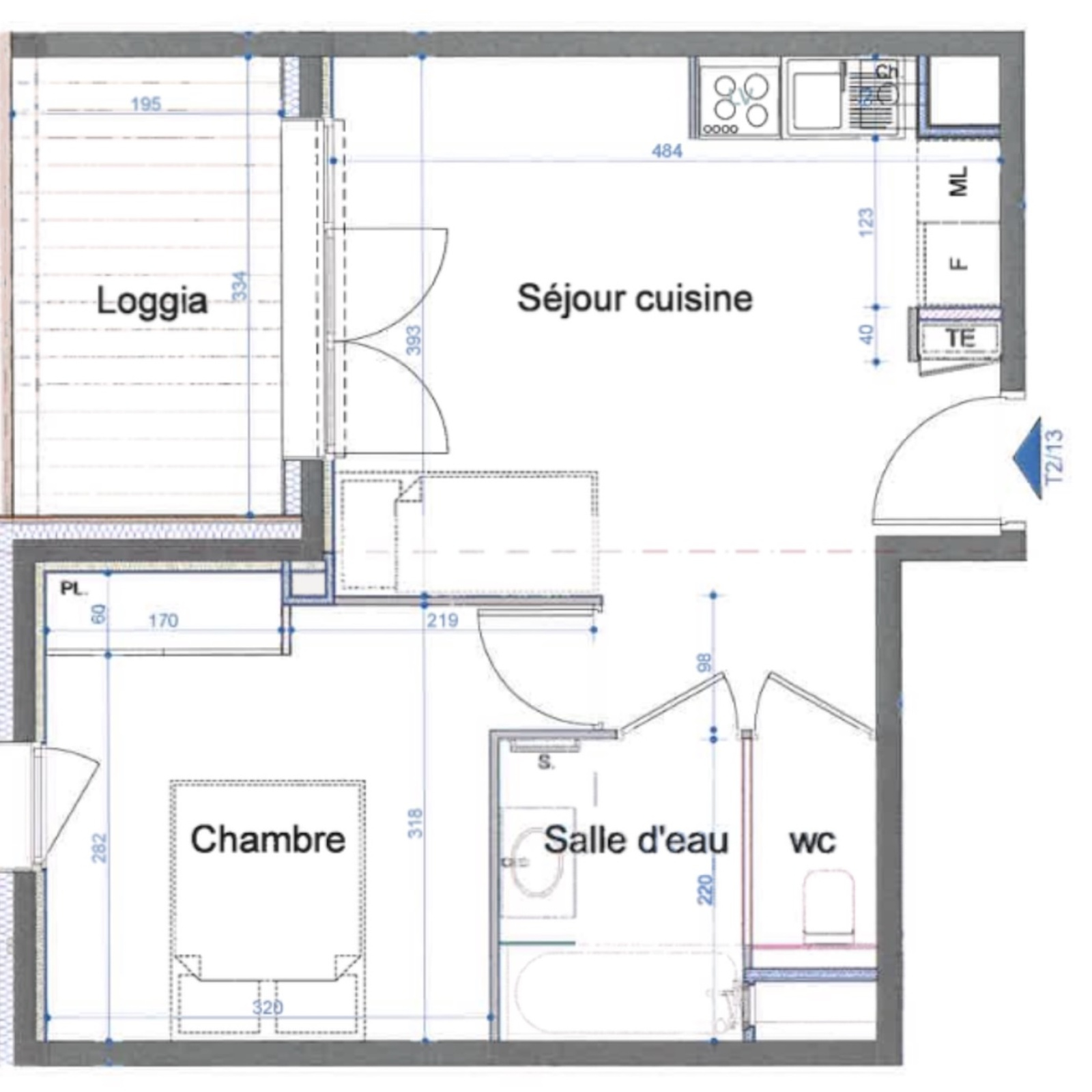
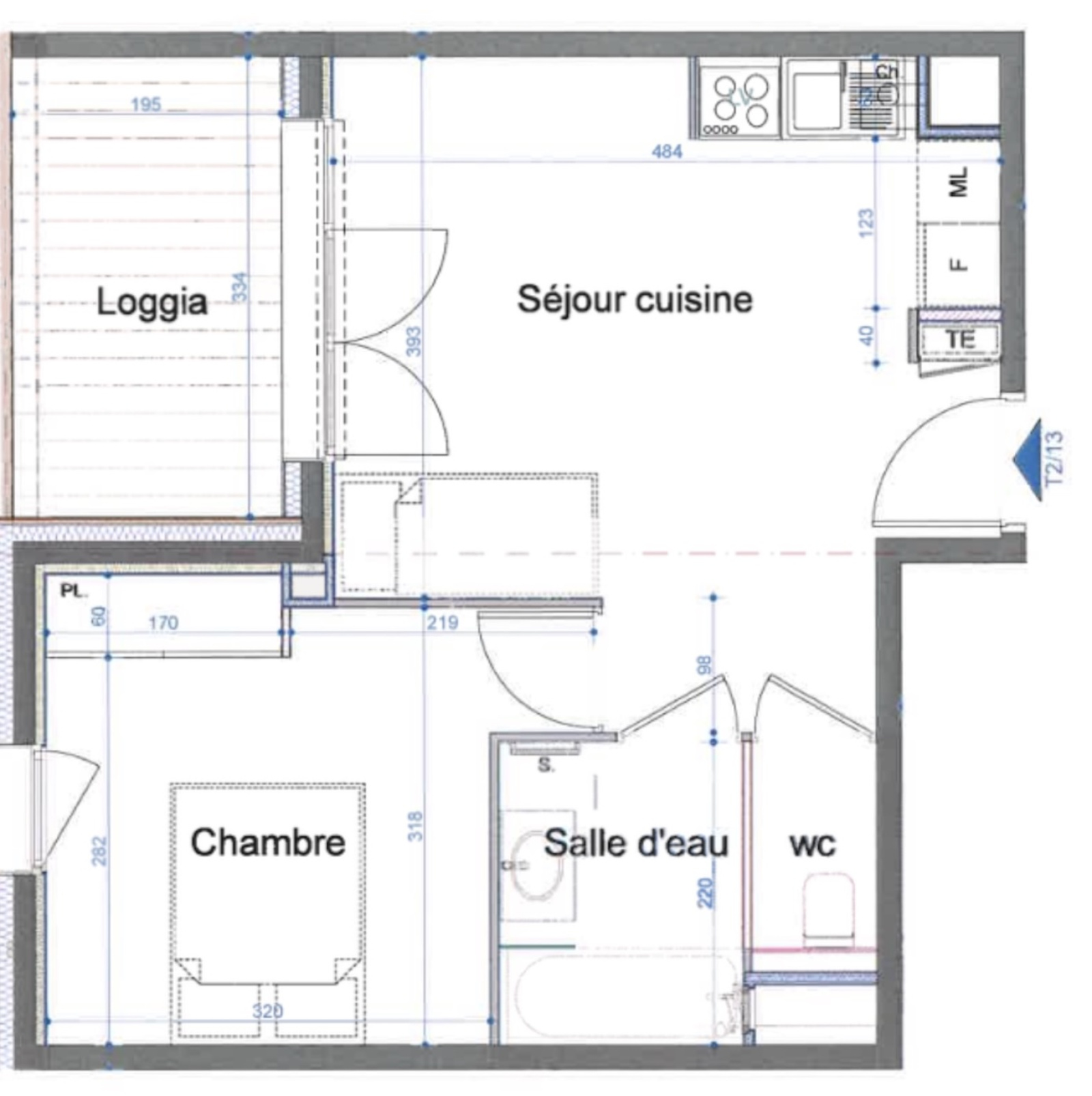
Appartement deux pièces situé au premier étage dans la résidence Le Chalet de Val Cenis, exposition Ouest avec une loggia. Cave et emplacement de parking en sous-sol en supplément.

Il se compose d'un séjour avec un coin cuisine toute équipée - une chambre indépendante - une salle de bain et un WC indépendant. Casier à skis;

Prestations de grand standing - Ascenseur - garage sécurisé au sous-sol - Qualité de construction optimale en montagne à 1500 mètres d'altitude (conforme à la règlementation RT 2012) - Un engagement de qualité - La transparence - La sécurité - Un accompagnement avec un partenaire local FNAIM - Frais de notaire réduit à 2,8%.

Bilan énergétique

Diagnostics énergetiques
Consommation énergétique
A B C D E F G
Emission de gaz à effet de serre
A B C D E F G
DPE ANCIENNE VERSION
A propos de ce bien Caractéristiques de ce bien
  • Surface 36 m²
  • carrez 36,42 m²
  • séjour 20 m²
  • 1 chambre(s)
  • 1 salle(s) de bain
  • construit en 2023
  • kitchenette (semi-équipée)
  • Chauffage individuel : au sol (gaz de ville)
  • 1 garage(s)
  • exposition Ouest
  • 2 côté(s) mitoyen(s)
  • 2 niveau(x)
  • 1er étage
  • 2 étage(s)
  • ascenseur
  • vue Montagne
  • cave
  • terrasse
  • accès handicapé

Composition

Composition de ce bien

Rez-de-chaussée

  • chambre 9.06 m²
  • salon/sejour 18.51 m²
  • salle de bain 3.90 m²

Info copro

Copropriété
  • Copropriété Oui
  • Lot n° 1
  • Nombre de lots 11
  • Quote part annuelle des charges 800 €
  • Plan de sauvegarde Non
  • Statut du syndic Pas de procédure en cours

Financier

Informations financières
Prix de vente honoraires TTC inclus 282 983 €
Prix net vendeur 272 795 €
Prix de vente honoraires TTC exclus 273 162,38 €
Honoraires TTC à la charge acquéreur 3,6 %
Charges 66 €
Taxe foncière annuelle 450 €
Taxe d'habitation 400 €

Simulation

Calcul des mensualités
* Champs obligatoires
LE PLAISIR EN VANOISE Agence